Dirección de obra · Project management · BIM

ARQUITECTA

SUPERIOR Y TÉCNICA.

Arquitecta con más de seis años de experiencia internacional en diseño arquitectónico, interiorismo y dirección de obra, tanto en Argentina como en España. Radicada en Barcelona desde 2024, lidero proyectos de principio a fin, presentaciones ante ayuntamientos y la coordinación de equipos multidisciplinarios. Combino visión creativa y rigor técnico con una sólida capacidad de gestión, garantizando resultados de alta calidad dentro de los plazos y presupuestos establecidos.

Dirección de obra

Coordinación de instalaciones, contratistas y seguimiento en campo.

2D·3D·BIM

AutoCAD, Revit, Rhinoceros, Lumion y sistemas industrializados X-Panel.

Martina Abatedaga Carletti trabajando en planos y renders.

Proyecto

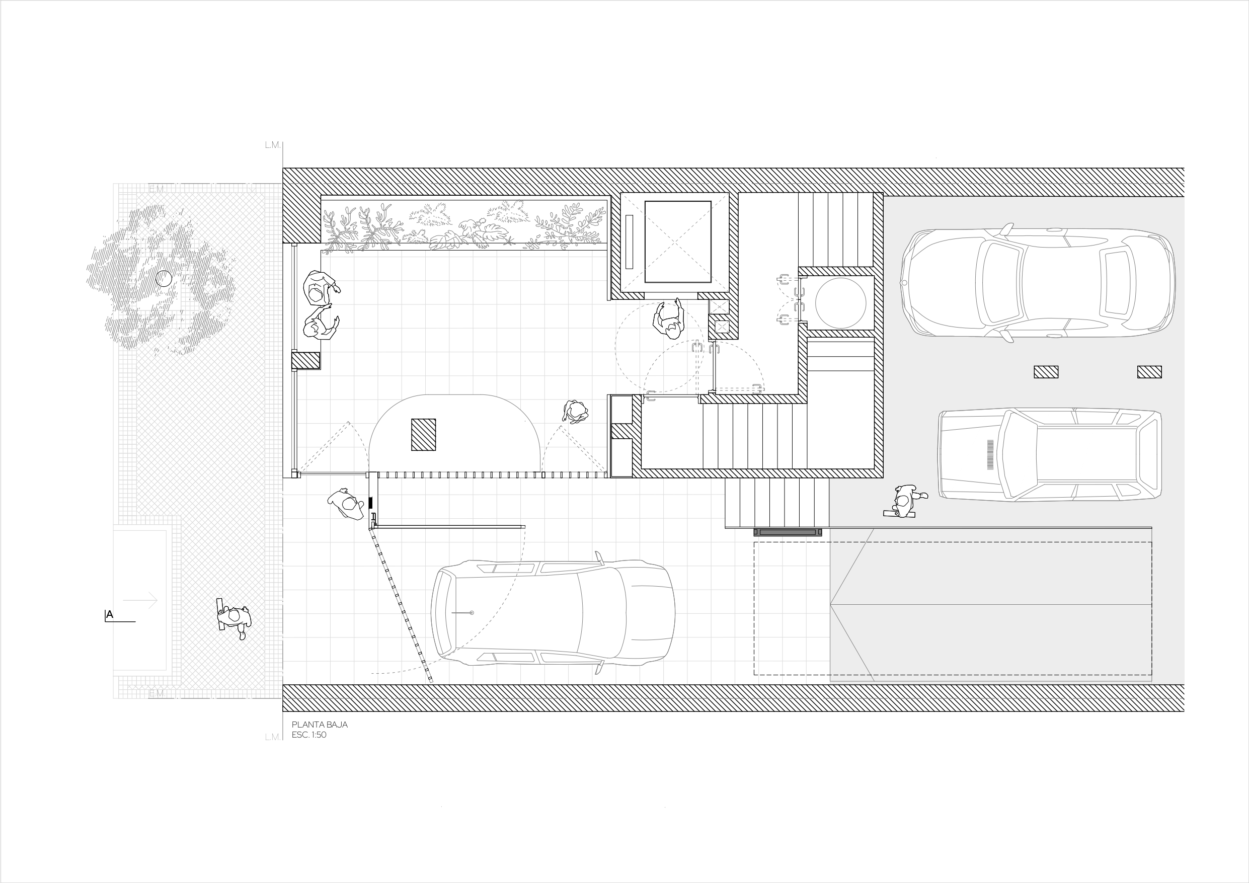
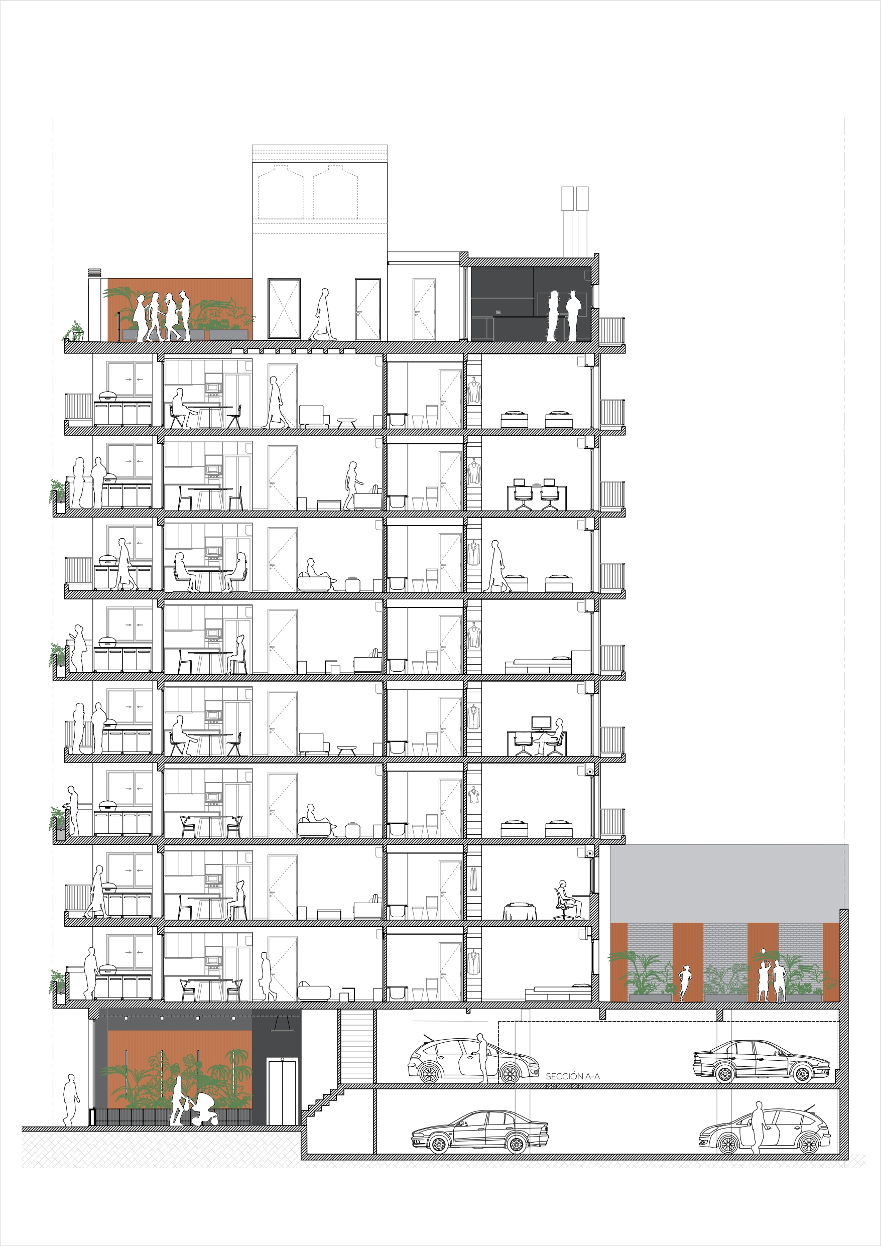
Muelle 18

Muelle 18 se implanta en centro de la ciudad de Rosario, Argentina, retomando el carácter urbano del entorno para construir una presencia activa hacia la calle. El proyecto propone un borde habitable donde interior y ciudad se encuentran, con un ingreso tratado como un patio que introduce vegetación, luz tamizada y texturas naturales, generando una transición serena antes de acceder al espacio doméstico. La fachada articula retranqueos, balcones-terraza y materialidades permeables que mejoran la luz y la ventilación, devolviendo a la calle una escala humana y contemporánea.

El edificio se organiza en ocho unidades de piso exclusivo, concebidas como “casas en altura”, con amplias terrazas que expanden la vida interior y permiten integrar vegetación y usos cotidianos. La combinación de hormigón visto, vidrio, madera y tejuelas de ladrillo configura una identidad atemporal basada en la sinceridad material y la durabilidad. Cerraduras biométricas, toldos inteligentes, riego automatizado y sistemas de seguridad acompañan nuevas formas de habitar sin interferir en la experiencia espacial.

Muelle 18 · Legajo y dirección de obra

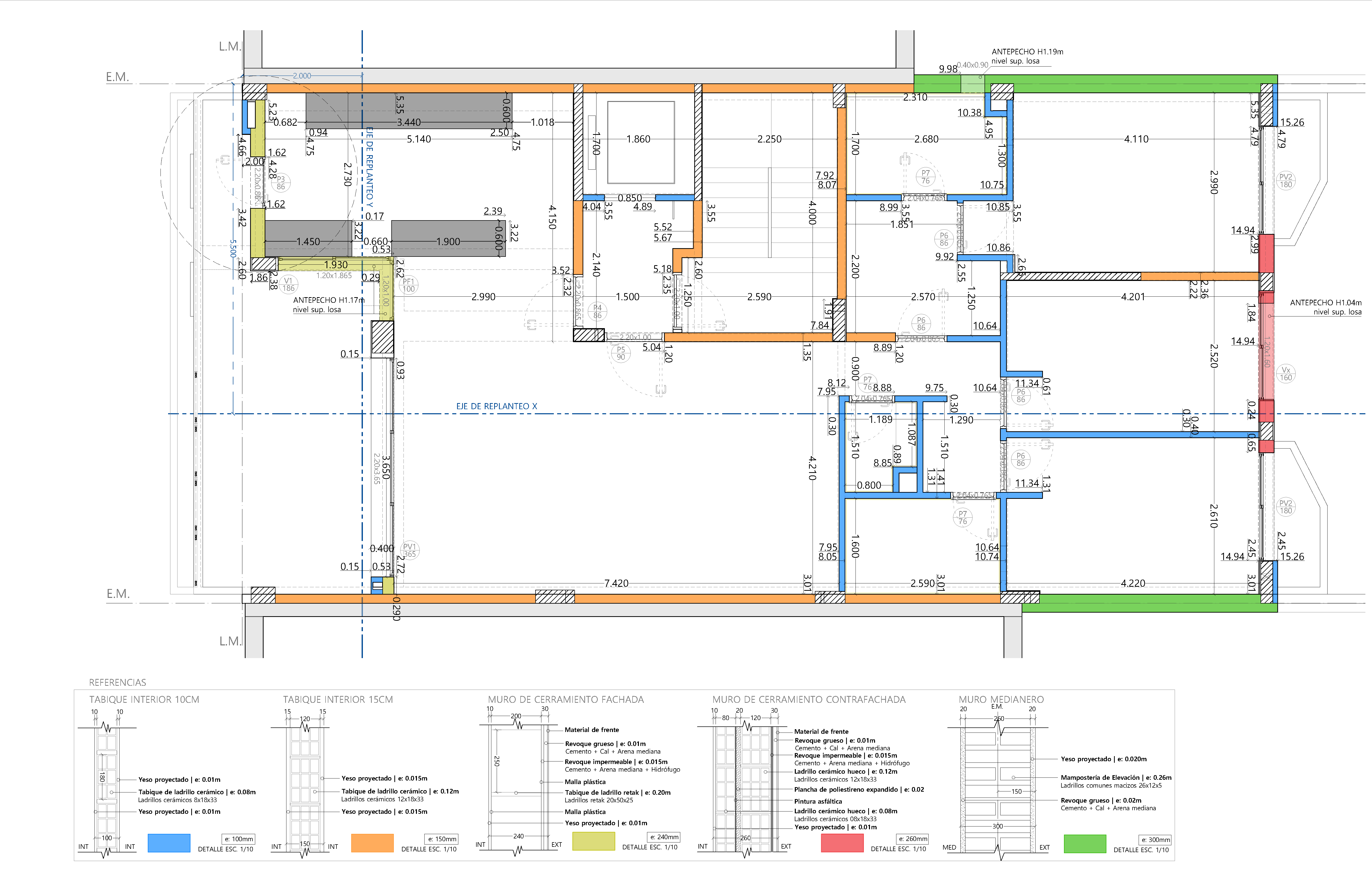
Mi rol profesional en el proyecto fue desarrollar el legajo ejecutivo y liderar la dirección de obra. Coordiné reuniones con ingenieros y gremios, realicé relevamientos constantes y tomé decisiones clave para resolver imprevistos, asegurando que la calidad, la identidad material y la visión original de las “casas en altura” se mantuvieran intactas hasta el resultado final.

Proyecto

JP8 Reforma

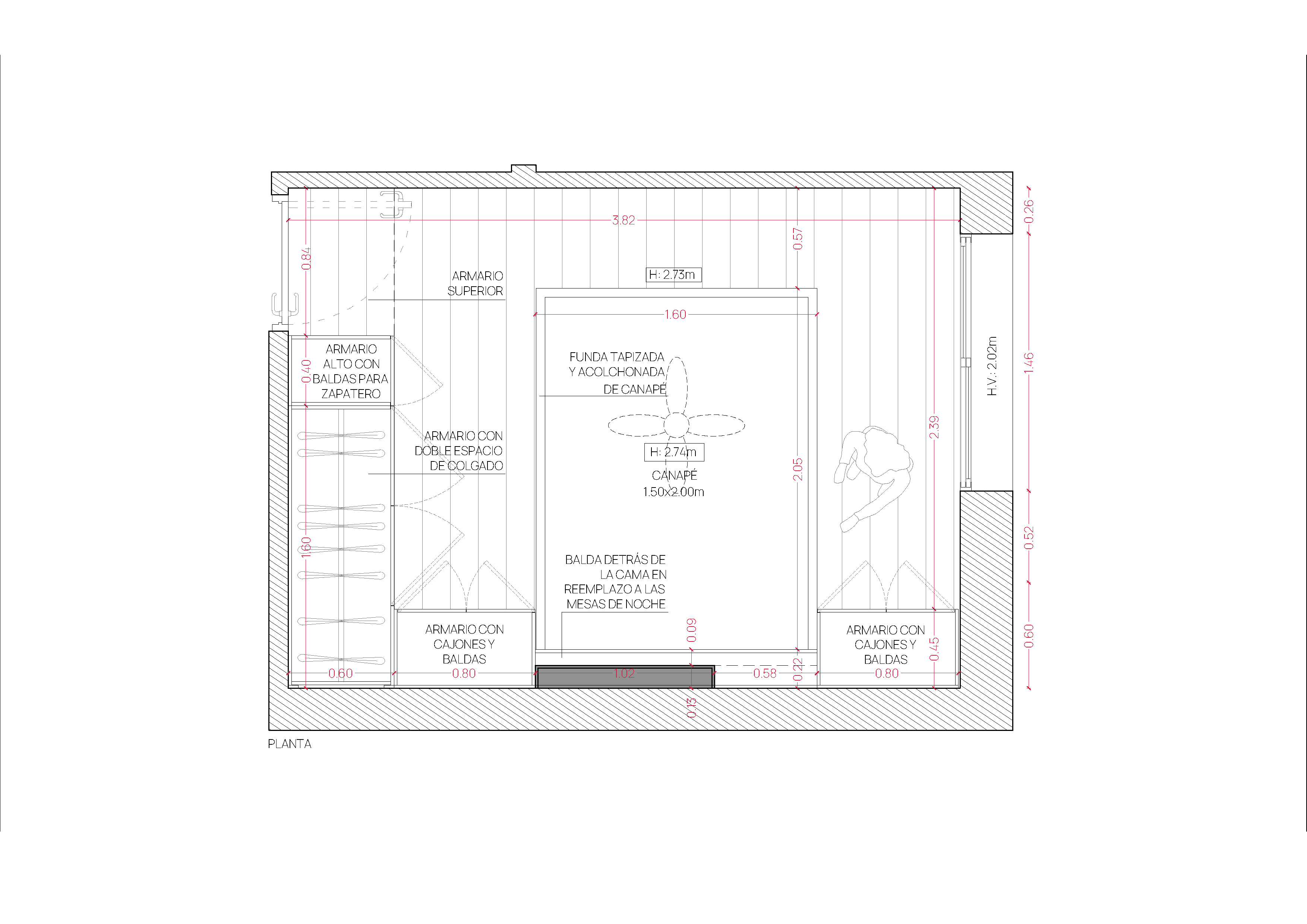
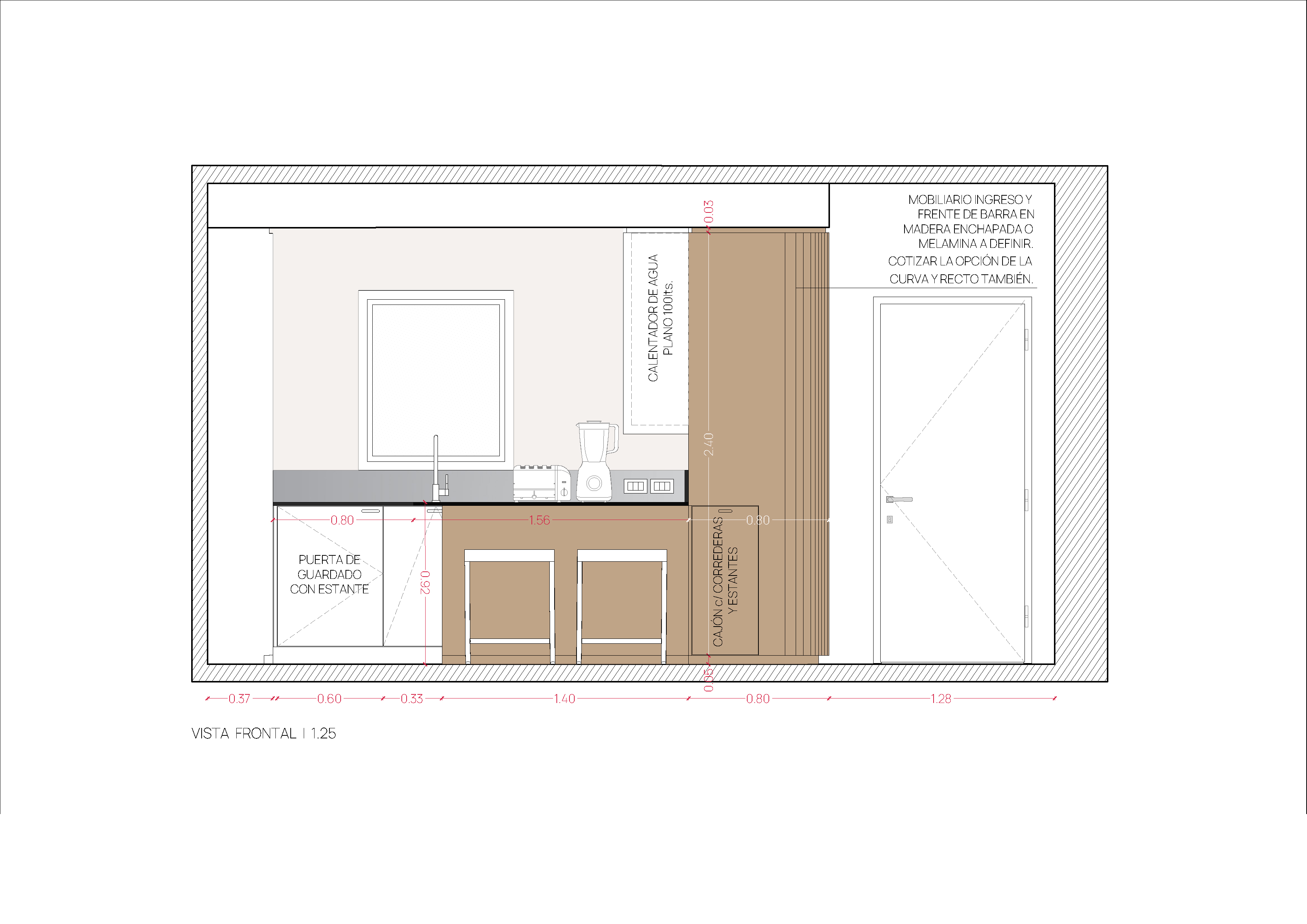
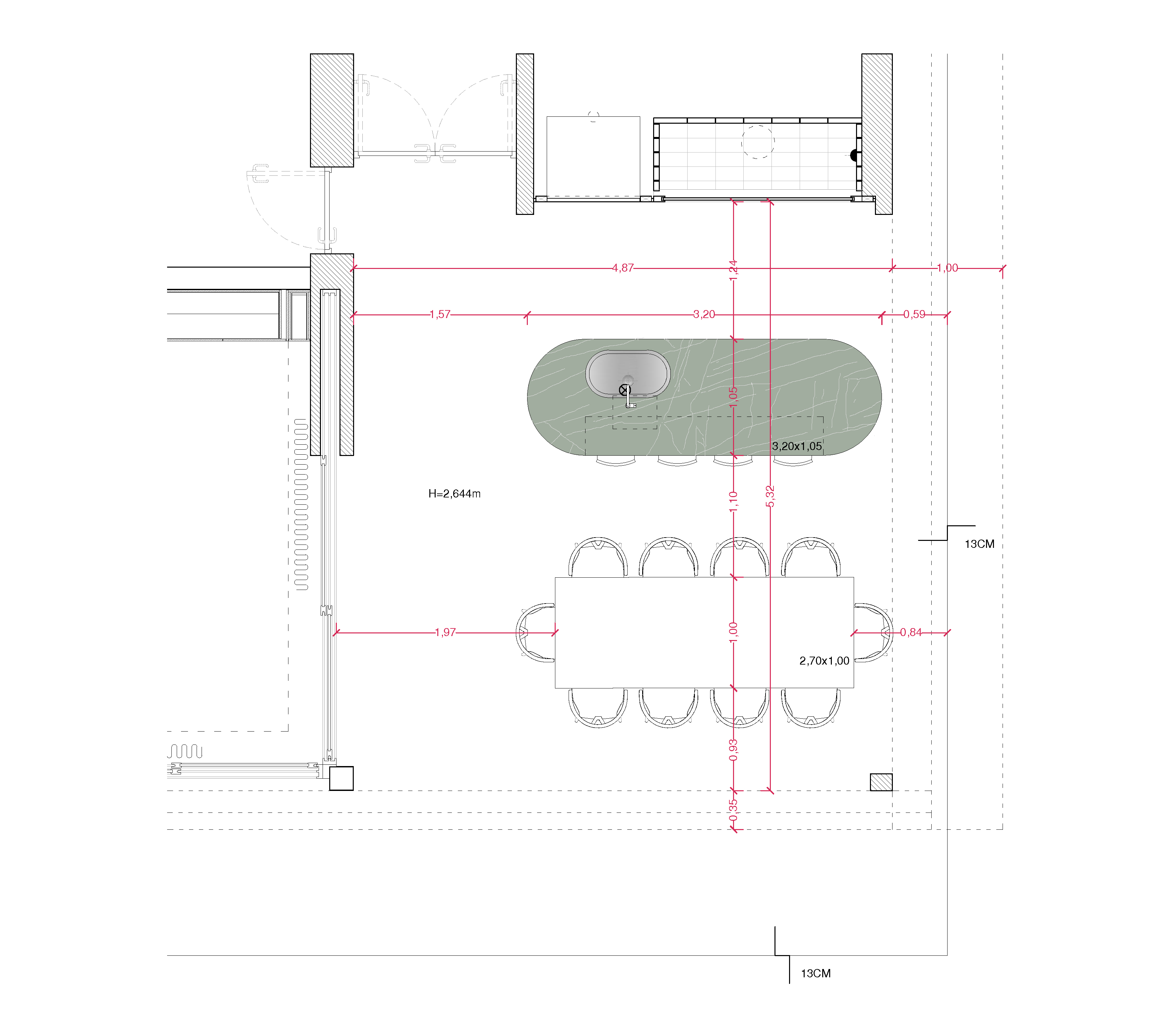
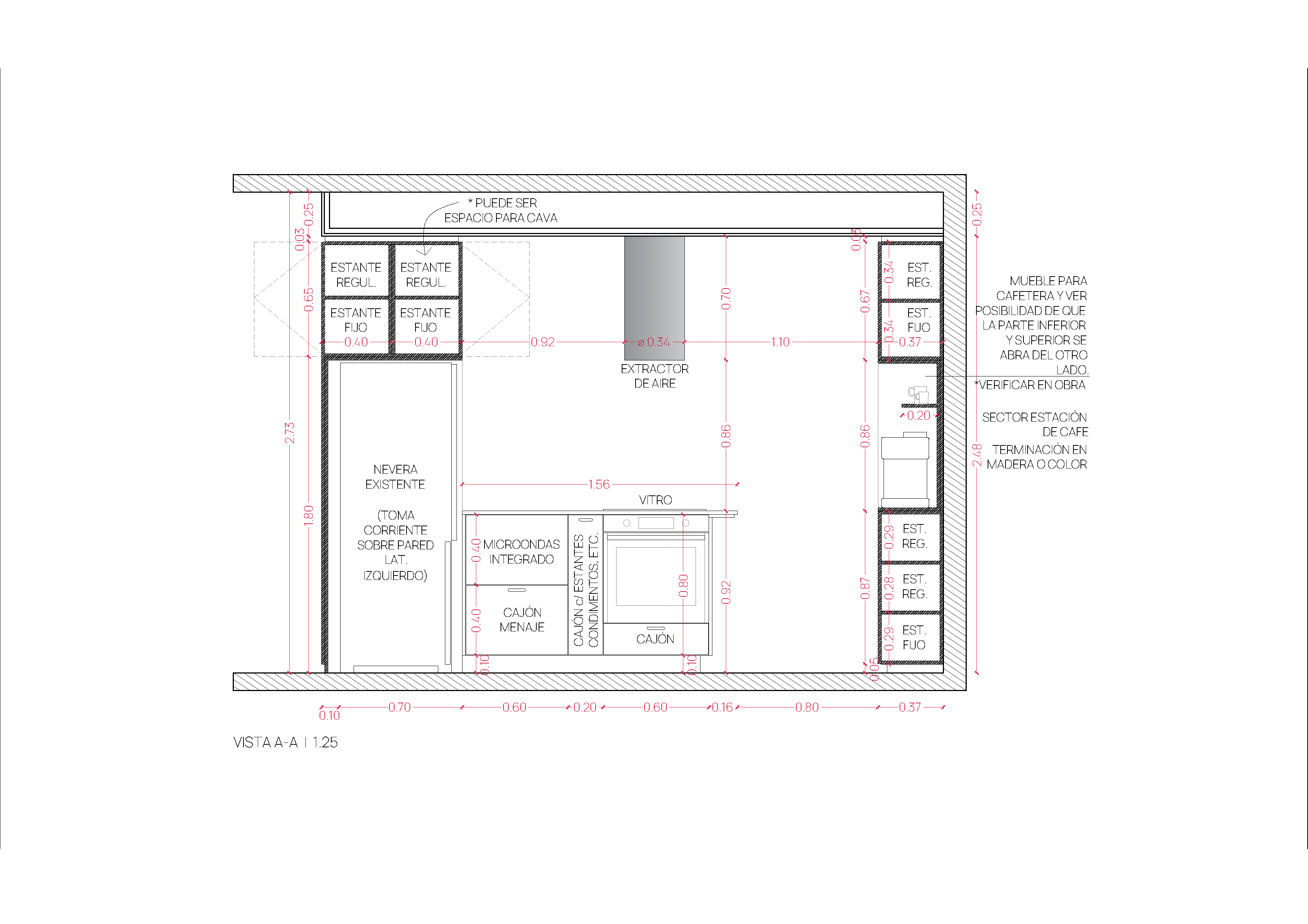
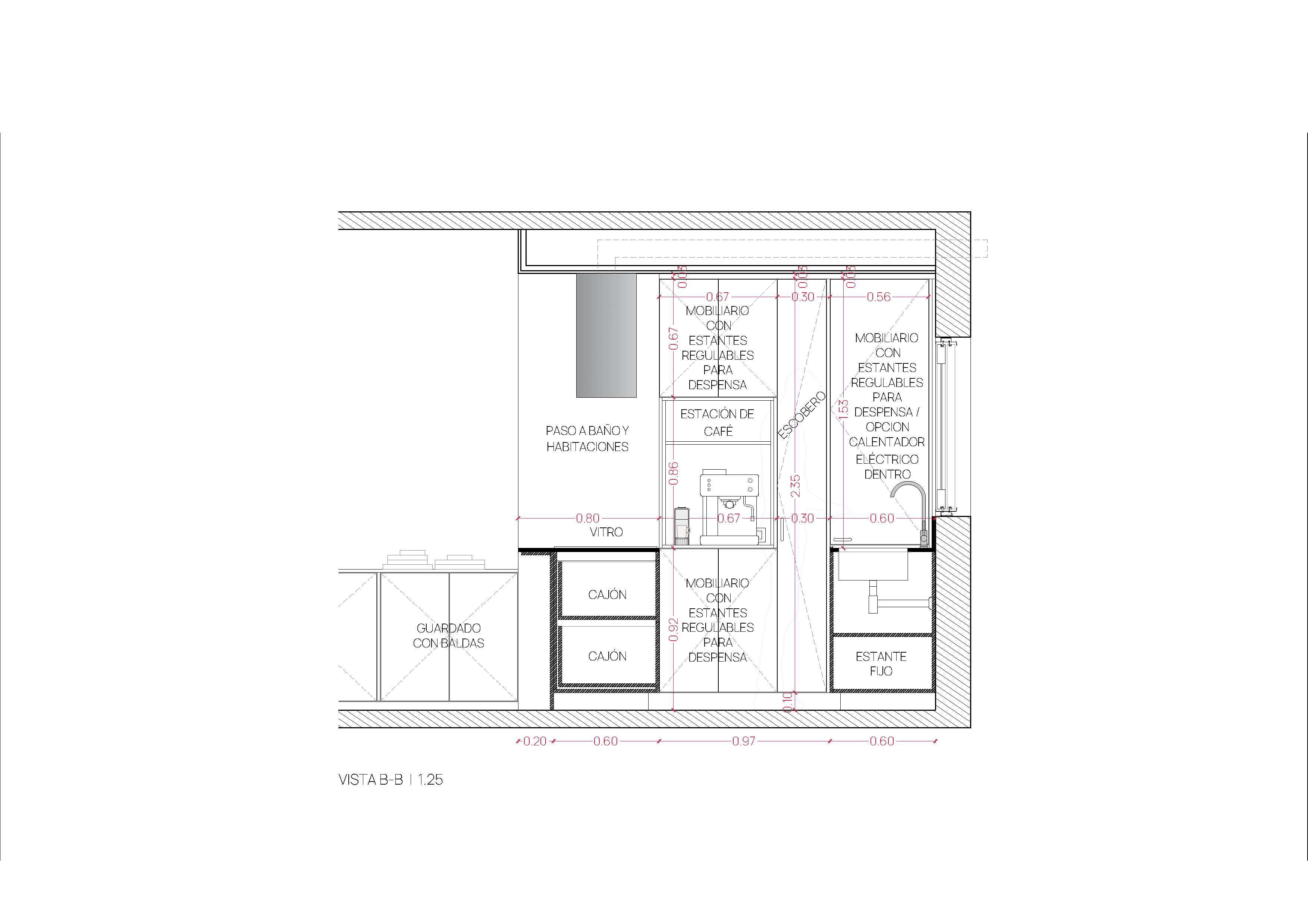
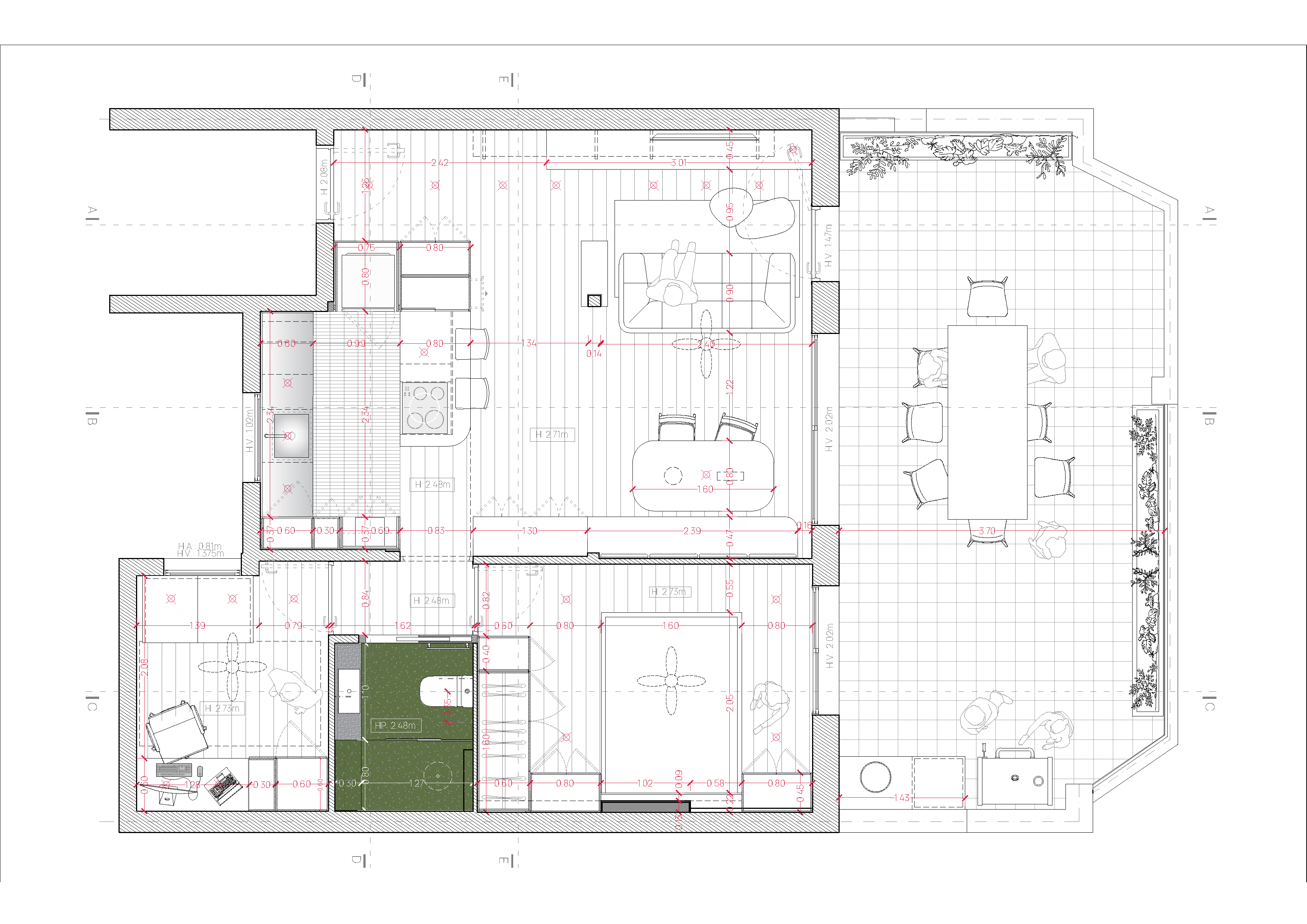
Reforma integral de 55 m² para una pareja joven amante de la gastronomía. Eliminamos tabiques para liberar la planta y colocar la cocina como pieza central que articula estar y comedor, potenciando la vida social y la relación con la terraza.

Diseñamos mobiliario a medida para optimizar almacenamiento y uso diario, con materiales y texturas contrastantes que aportan identidad. Cada decisión responde a la ilusión de los clientes y al objetivo de revelar todo el potencial funcional y emocional de la vivienda.

Proyecto

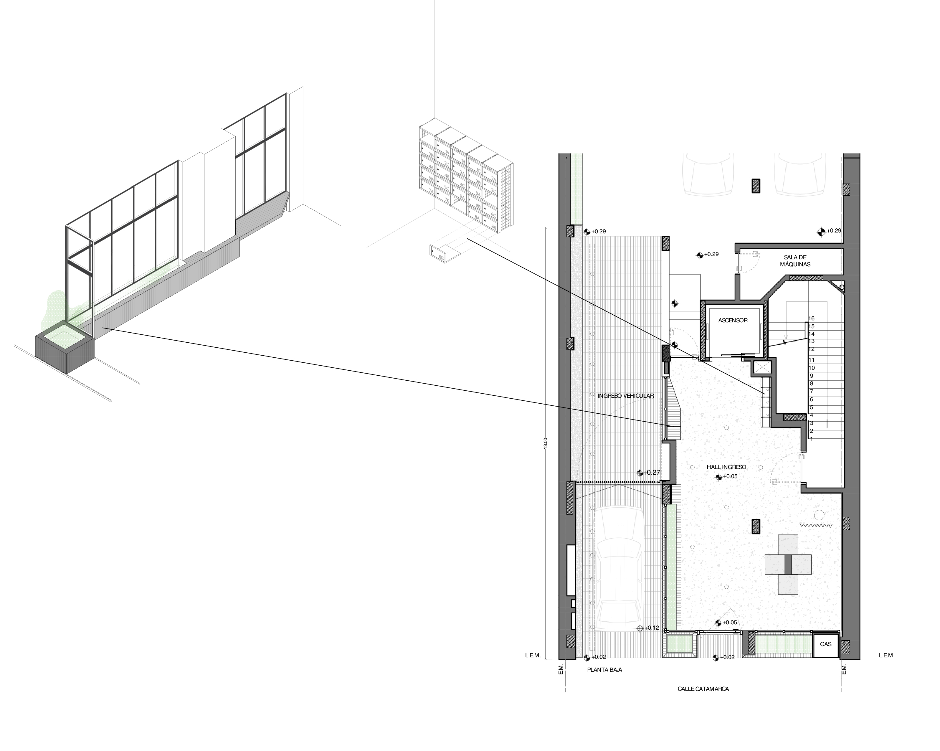
Muelle 16

El encargo del proyecto consistió en el diseño del ingreso peatonal y vehicular de un edificio dirigido a un público joven. La propuesta prioriza una circulación fluida y luminosa, con un ambiente minimalista que conecta la calle con el ascensor mediante materiales resistentes y vegetación como elemento de transición. Se trabajó cuidadosamente la elección de terminaciones para soportar el uso cotidiano —incluído el tránsito de mascotas— sin perder apariencia.

Una pieza clave es el mural de gran formato que acompaña el acceso vehicular. Invitamos a artistas locales para crear una obra inspirada en la vegetación y la juventud del edificio, generando un punto de interés visible desde la vereda y estableciendo un vínculo entre interior y exterior.

Proyecto

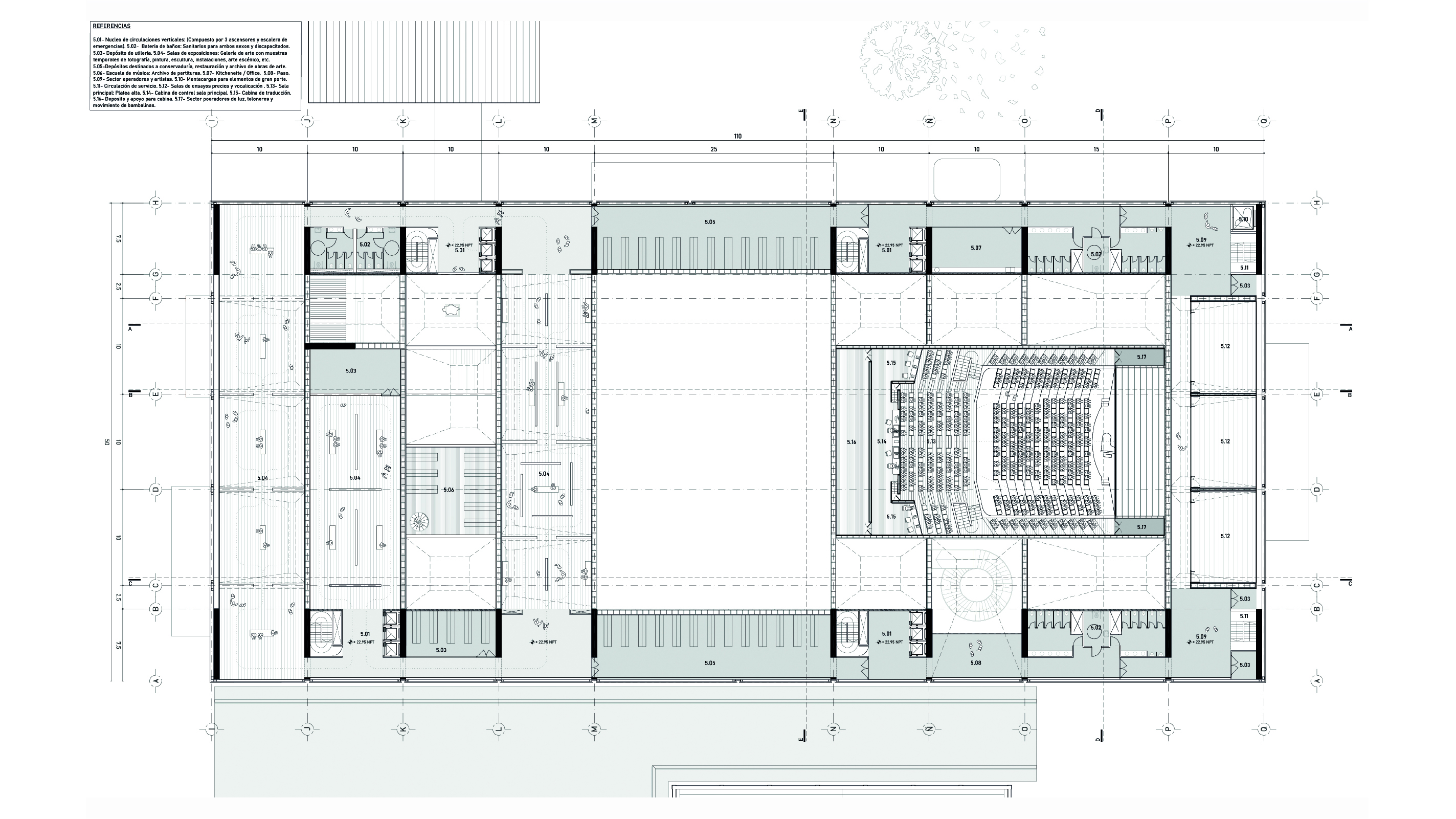
Proyecto final de carrera

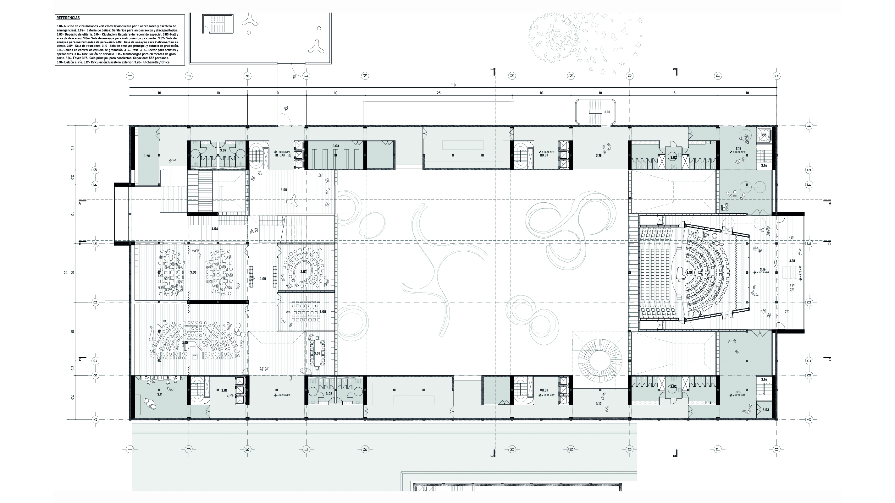
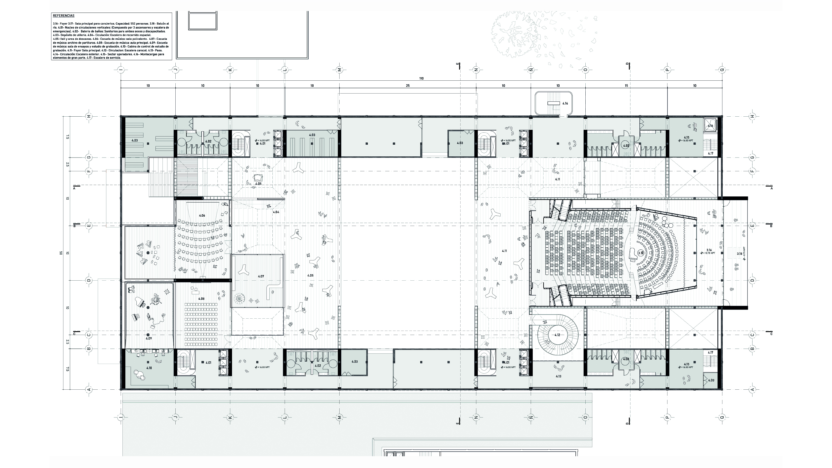
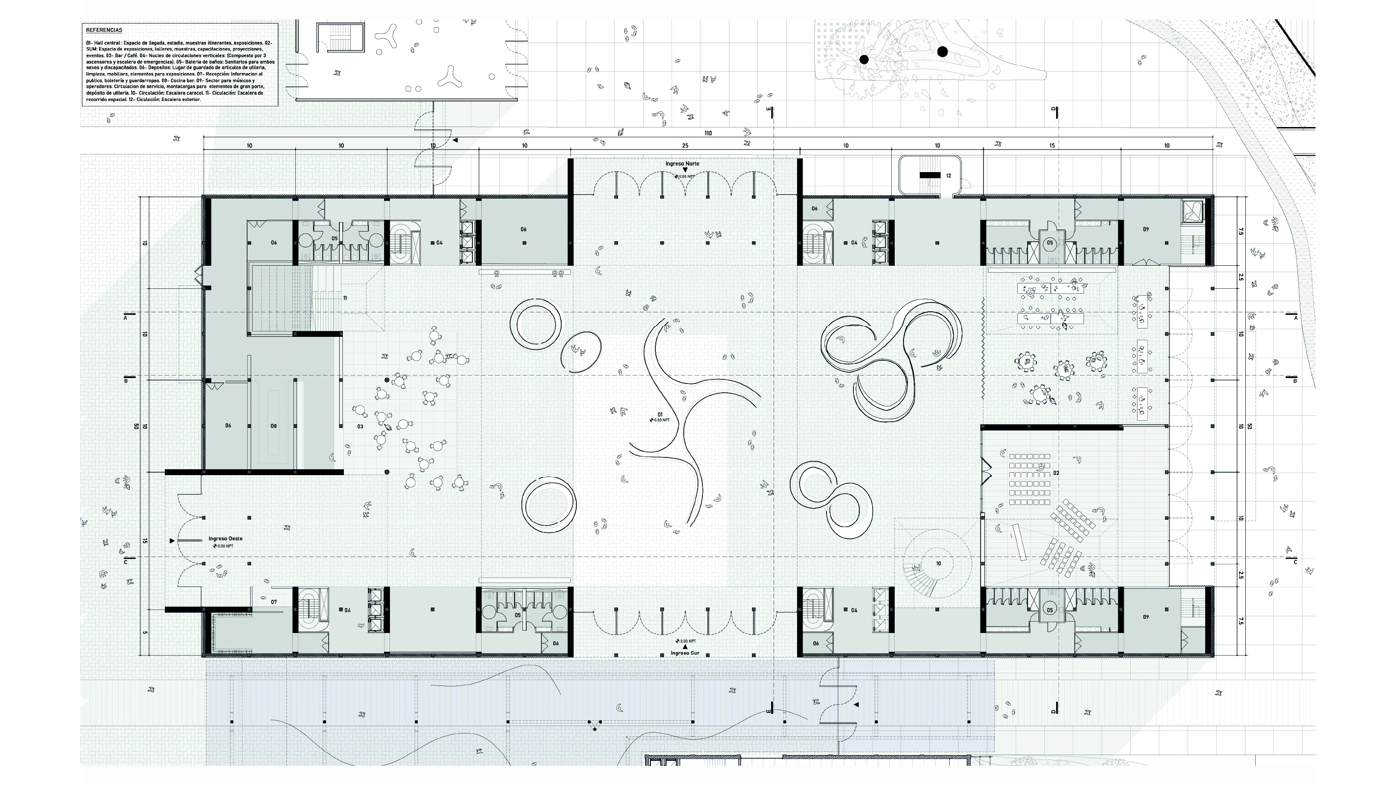
El proyecto “HUELLAS” aborda la reutilización y resignificación de infraestructuras en desuso provenientes del modelo agroexportador argentino, tomando como caso de estudio el antiguo frigorífico Swift en Villa Gobernador Gálvez (VGG). Las antiguas instalaciones del frigorífico bloquean el acceso de la ciudad al río; la intervención propone un masterplan que devuelve el frente ribereño a la población y conecta los tres centros urbanos de la ciudad. El plan contempla mejoras en barrios linderos, la conversión de una avenida en corredor verde y la reorganización del actual complejo industrial mediante un gran parque urbano con usos comerciales, productivos, culturales y un centro de investigación vinculado a la industria alimenticia.

La propuesta paisajística edifica sobre la memoria del sitio por medio de operaciones de vaciado que jerarquizan espacios y definen nuevos recorridos. Se plantean tres plazas consecutivas y una única pieza nueva con lógica de tira que aloja huertas urbanas y establece el límite con la planta frigorífica activa. El Centro Cultural, pieza icónica del proyecto, conserva la piel y estructura perimetral de una nave existente, ampliando el patio central e incorporando un volumen superior que retoma la morfología industrial de tolvas. La arquitectura funciona como telón de fondo para múltiples actividades, reconstruyendo un vínculo contemporáneo y sensible entre ciudad, río e historia productiva.

Proyecto

Quincho GyR

Como colaboradora de Estudio Actis participé en el interiorismo integral y el desarrollo de mobiliario a medida para un quincho en Rosario, Argentina. El objetivo fue crear un espacio de encuentro moderno para una familia numerosa, maximizando funcionalidad y almacenamiento. El diseño combina madera, hormigón y metal negro para vincularse con el entorno natural, mientras que cada detalle constructivo garantiza durabilidad y fácil mantenimiento.

Proyecto

Interiorismo IC

Colaboré con Estudio Actis en la etapa de anteproyecto y renders para una vivienda de alto nivel en Rosario. El encargo se centró en crear una identidad estética rica para cada ambiente manteniendo la cohesión general, potenciando alturas y visuales interiores mediante mobiliario de diseño y piezas de iluminación de alta calidad.

Mi aporte se enfocó en definir la atmósfera sofisticada del proyecto, utilizando la iluminación como recurso arquitectónico para destacar texturas y jerarquizar espacios. El resultado es un interior contemporáneo que combina detalle técnico y una estética de vanguardia alineada al estilo de vida del cliente.

Proyecto

AyJ Reforma

En colaboración con Estudio Actis participé en la reforma integral de una casa tradicional de pasillo en Rosario. El eje del proyecto fue la revalorización del patio central como corazón de la vivienda, ampliando visuales y conectividad entre interior y exterior. Una paleta neutra y cálida sirve de soporte para la vegetación protagonista, a la vez que materiales resistentes garantizan mantenimiento sencillo.

Colaboré en el anteproyecto y en la producción de renders para comunicar la intervención, asegurando coherencia entre concepto y resolución técnica. El resultado es un hábitat luminoso y flexible que retoma el carácter original del patio y lo adapta a los nuevos usos familiares.

Proyecto

Interiorismo LP

Colaboré con Estudio Actis en el anteproyecto y renders para la reforma de un local comercial reducido en Rosario. El desafío fue ampliar visualmente el espacio mediante materiales ligeros y espejos estratégicos que duplican la percepción del área y mejoran la distribución de la luz.

El resultado es una estética minimalista y precisa, donde la iluminación destaca texturas y organiza el programa comercial. La intervención demuestra cómo el diseño puede convertir una limitación dimensional en una ventaja funcional y visual.

Perfil

Sobre mí

Radicada en Barcelona desde 2024, combino visión creativa y precisión técnica con una sólida capacidad de gestión. Domino AutoCAD, Revit/BIM, Rhinoceros, Lumion y la implementación del sistema industrializado X-Panel, además de la coordinación de instalaciones y especialidades para garantizar obras eficientes.

Puedo integrarme a estudios o empresas como Project Manager, Arquitecta de proyectos o Jefa de Obra. Acompaño cada fase: conceptualización, documentación, desarrollos 2D/3D, licencias, dirección de obra, relación con proveedores y entrega final alineada a objetivos de negocio.

Dirección y obra

Supervisión de obra, control de calidad y seguridad, seguimiento de presupuestos y cronogramas.

Interiorismo a medida

Diseño de mobiliario, selección de materiales e iluminación para viviendas, comercios y espacios comunes.

Gestión de licencias

Tramitación de licencias y presentaciones ante ayuntamientos del área metropolitana de Barcelona.

Legajos ejecutivos y relación con clientes

Compatibilización 2D/3D, reuniones técnicas y seguimiento con los distintos gremios, además del vínculo con promotores.

Trayectoria

Experiencia profesional destacada.

Arquitecta Project Manager · FIAAC Arquitectura y Construcción

May. 2025 – Presente · Barcelona

  • Desarrollo ejecutivo en BIM y coordinación de un equipo técnico de cuatro personas.
  • Dirección de obra residencial, asegurando plazos, calidad y seguridad.
  • Gestión de licencias, presentaciones ante ayuntamientos e implementación del sistema X-Panel.

Arquitecta independiente

Nov. 2024 – Presente · Barcelona

  • Diseño y ejecución de reformas integrales y parciales, interiorismo y mobiliario a medida.
  • Gestión integral de fases: concepto, relevamientos, permisos, obra y entrega final.
  • Elaboración y control de presupuestos, optimizando recursos sin comprometer la calidad.

Arquitecta de proyectos · Estudio Camila Pedemonte

Feb. 2022 – May. 2025 · Argentina

  • Desarrollo de viviendas multifamiliares, interiores y comercios con documentación completa.
  • Modelado 3D y renders para comunicar conceptos y presentar a clientes.
  • Coordinación con equipos multidisciplinarios y análisis financiero de proyectos inmobiliarios.

Renderista freelance

Ene. 2021 – Ene. 2024 · Internacional

  • Modelado 3D y visualización para estudios de arquitectura en proyectos de diversa escala.

Diseñadora de interiores · Estudio ACTIS

Mar. 2021 – Ene. 2022 · Argentina

  • Reformas, interiorismo y diseño de mobiliario con foco en materiales, iluminación y experiencia.

Delineante · Estudio Rubén Palumbo

Abr. 2017 – Ago. 2019 · Argentina

  • Planimetrías de relevamiento y ampliación para el Hospital Mapaci y cadena La Distinción.
  • Participación en concursos, maquetas físicas y modelos 3D para proyectos comerciales.

Fortalezas

Herramientas y competencias que potencian cada proyecto.

Dominio transversal en 2D, 3D y BIM para documentar, visualizar y coordinar instalaciones con equipos técnicos y obra.

Aptitudes

  • Gestión de equipos y coordinación multidisciplinaria
  • Planificación, seguimiento y control de presupuestos
  • Orientación al cliente y comunicación efectiva
  • Resolución de problemas y toma de decisiones
  • Organización, análisis y seguimiento integral

Herramientas

  • AutoCAD (avanzado)
  • Rhinoceros & Lumion (avanzado)
  • Revit / BIM & SketchUp (intermedio)
  • Adobe CC · Microsoft Office (avanzado)
  • Sistema constructivo X-Panel

Idiomas

  • Castellano · Nativo
  • Inglés · Intermedio
  • Italiano · Intermedio
  • Catalán · Básico

Disponible para incorporarme a estudios o empresas en Barcelona y España.

Escríbeme